Work
About
Say Hello
Work
About
Say Hello
Janet Kuo
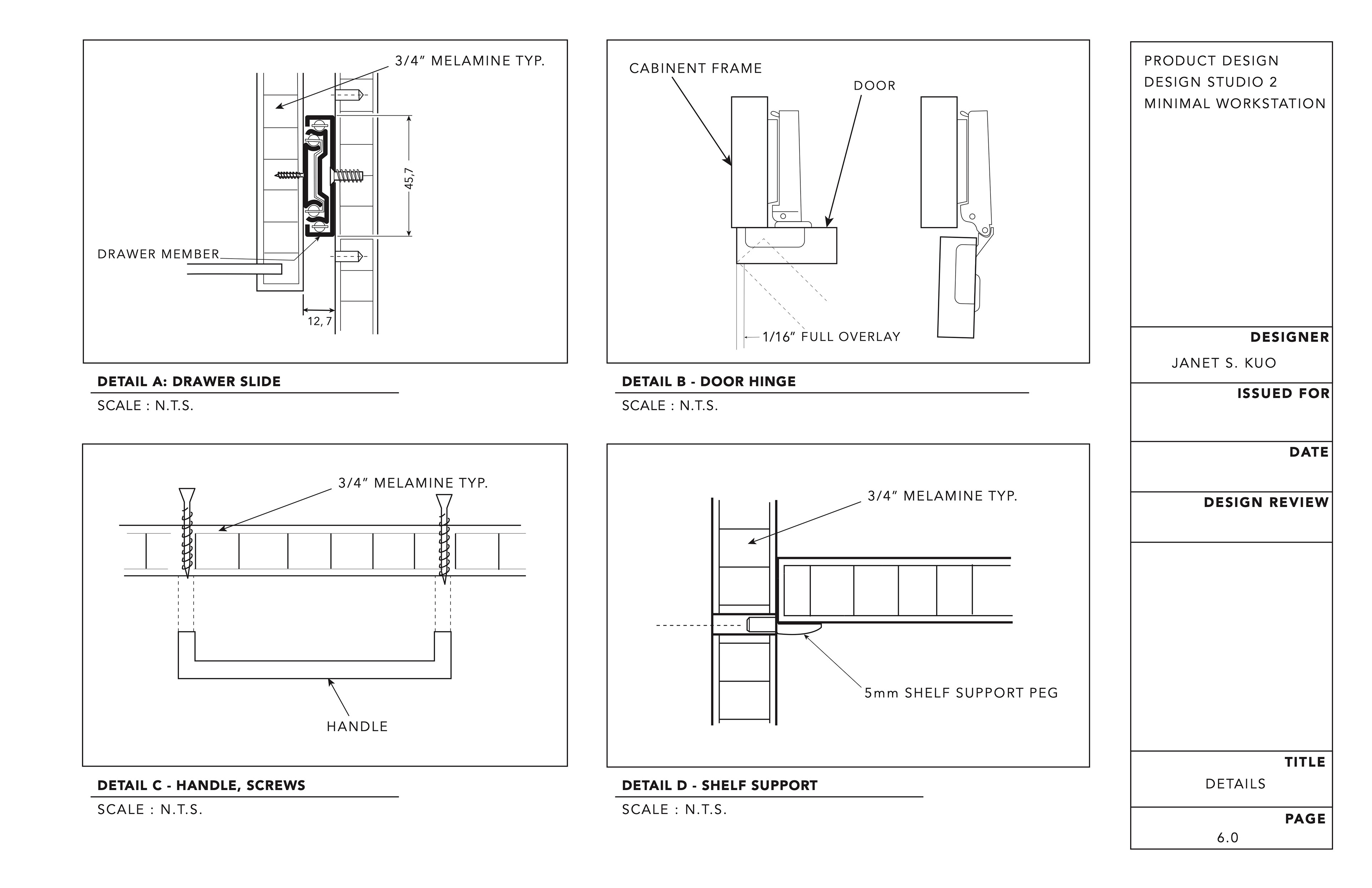
Minimal Workstation
Furniture Design | Small Space
Mind Mapping
Technical Package
↑
Back to Top